Vendo casa na Vila Araponguinha rua Tietinga
Rua Maitaca Verde, — Jardim Petrópolis, Arapongas - PR
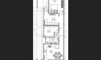
O imóvel "Vendo casa na vila araponguinha rua tietinga" possui 2 dormitórios, 3 banheiros, 2 vagas na garagem, venda por R$250.000, 130m² de área e está localizado em Rua Maitaca Verde, Jardim Petrópolis, Arapongas.
casa na Vila Araponguinha top à 50 metros dá avenida Siriema descendo para o campestre com 130 metros construídos e terreno de 200 metros.
Com escritura e registrada.
Suíte grande, sala, mais um quarto, cosinha grande, área de serviço com despensa grande, área gourmet, banheiro social e suíte grande, lavabo, garagem para 2 carros cobertos um do lado do outro e mais 1 descoberto, corredor lateral, espaço no fundo para jardim, casa bem arejada com iluminação natural.
Tem 2 quartos mais dá pra fazer mais um quarto muito facilmente.
Água quente na casa inteira com aquecedor solar.
como está ou terminada.
Casa à venda
Atualizado há mais de 1 mês
PREÇO R$ 250.000
Peres
Ver anúnciosConversar com o anunciante
Para sua segurança:
1. Não realize pagamento adiantado.
2. Suspeite de anúncios com valores duvidosos.
Tem interesse?
Envie uma mensagem ao anunciante.













