Terreno à venda, 2700 m² por R$ 600.000,00 - Itaipuaçu - Maricá/RJ
Rua Rincão Mimoso, — Rincao Mimoso, Maricá - RJ
2700m² de Área
O imóvel "Terreno à venda, 2700 m² por R$ 600.000,00 - itaipuaçu - maricá/rj" possui Venda por R$600.000, 2700m² de área e está localizado em Rua Rincão Mimoso, Rincao Mimoso, Maricá.
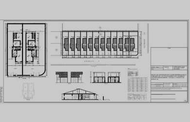
Excelente oportunidade para construtores e investidores do ramo imobiliário. Área de 2.700 m² com alvará de obras de condomínio com 12 casas, já aprovado pela prefeitura. Especificações da planta: 12 Unidades de casas Casas 01 e 02 possuindo 78,04 m² Casas 03 a 12 possuindo 69,04 m² Área total construída 846,48 m² O terreno fica localizado na região que mais cresce em Itaipuaçu. A menos de 800 metros do centro comercial Barroco. Comercio e transporte a disposição. Agende uma visita! Aceita financiamento bancário! -
O terreno possui 2700m² de Área e está localizado em Rua Rincão Mimoso, Rincao Mimoso, Maricá à venda por R$600.000.
Terreno / Lote à venda
Atualizado há mais de 1 mês
PREÇO R$ 600.000
Para sua segurança:
1. Não realize pagamento adiantado.
2. Suspeite de anúncios com valores duvidosos.
Tem interesse?
Envie uma mensagem ao anunciante.




















