Terreno à Venda na Av. Atlântica 400 m² | Projeto Aprovado | Excelente Localização
Vila Valparaíso, Santo André - SP
400m² de Área
O imóvel "Terreno à venda na av. atlântica 400 m² | projeto aprovado | excelente localização" possui Venda por R$1.800.000, IPTU por R$2.889, 400m² de área e está localizado em Vila Valparaíso, Santo André.
à Venda na Av. Atlântica 400 m² | Projeto Aprovado | Excelente Localização | Oportunidade para Construtores
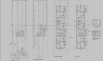
Imperdível oportunidade para investidores e construtores! Terreno localizado na Av. Atlântica, no coração da Vila Paraíso, em Santo André. São 400 m² (10 x 40) de área total, prontos para construção, com toda a infraestrutura preparada para torre residencial.
O imóvel
400 m² de área total (10 x 40)
Projeto para 1 torre de 7 andares
2 pavimentos de garagem + 5 pavimentos de habitação
15 apartamentos previstos (41 m², 55 m² e 57 m²)
Terraplanagem realizada
Cortina de contenção e muro de arrimo concluídos
Demolição do imóvel antigo já executada
Localização estratégica
Situado em uma das partes mais nobres da Av. Atlântica, o terreno fica em frente à Praça Atlântica e possui fácil acesso ao corredor ABD. Está próximo à Faculdade de Medicina do ABC e à Universidade Metodista, em uma região consolidada, com excelente fluxo de pessoas e comércios.
Destaques
Terreno nivelado e pronto para construir
Localização de alto potencial construtivo e valorização
Ideal para construtoras e investidores
Oportunidade imperdível preço abaixo do mercado!
Vianna Imobiliária 19 anos de tradição no Bairro Jardim
Atendimento ágil, seguro e especializado para garantir tranquilidade jurídica em todas as negociações.
Entre em contato e garanta esta excelente oportunidade de investimento em Santo André!
A Grandini atua desde 2007 na comercialização de imóveis em toda Grande ABC. Respeito, responsabilidade e seriedade são valores que pautaram a trajetória da empresa. O nome vem do latim Grandis, de virtudes e qualidades de alto grau. E é assim que a empresa pretende continuar sua história, oferecendo ao mercado os melhores produtos para atender as necessidades de cada cliente. A busca pela plena satisfação é a meta da Grandini. Para isso, oferece transparência nas negociações, ética nas relações, comprometimento e credibilidade. A empresa possui equipe qualificada, formada por profissionais das áreas administrativa e jurídica, para assessorar os clientes em todas as etapas até a conclusão do seu negócio imobiliário. Com a inauguração da sede própria, a Grandini ampliou sua atuação no mercado. Além de comercializar imóveis residenciais e comerciais, a locação e administração passam a fazer parte da rotina da empresa.
Terreno / Lote à venda
Atualizado há 4 dias
PREÇO R$ 1.800.000
IPTU R$ 2.889
Anderson Viana Empreendimentos Imobiliarios Ltda - Me
Ver anúnciosConversar com o anunciante
Tem interesse?
Envie uma mensagem ao anunciante.













