Sobrado Geminado com 3 dormitórios no Bairro Boa Vista - Joinville/ SC
Rua General Góes Monteiro, — Boa Vista, Joinville - SC
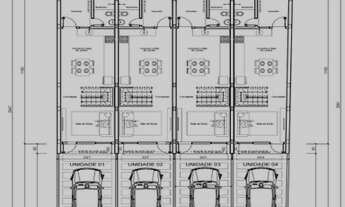
O imóvel "Sobrado geminado com 3 dormitórios no bairro boa vista - joinville/ sc" possui 3 dormitórios, 2 banheiros, 2 vagas na garagem, venda por R$342.000, 81m² de área, ar-condicionado, varanda e está localizado em Rua General Góes Monteiro, Boa Vista, Joinville.
geminado em construção no bairro Boa Vista.
São 3 quartos, salas de estar e jantar, cozinha, dois banheiros, área de serviço, varanda e duas vagas de garagem, acabamento em calfino e porcelanato, além de infraestrutura para ar condicionado em todos os ambientes. Plantas a partir de 81,26m² privativo, tendo mais duas opções de planta mediante consulta.
Registro de incorporação: 14.780.
Previsão de entrega da obra para maio de 2023.
Fale conosco: -
Casa à venda
Atualizado há mais de 1 mês
PREÇO R$ 342.000
Perfil Imóveis
Ver anúnciosConversar com o anunciante
Tem interesse?
Envie uma mensagem ao anunciante.














