Sobrado na Planta Parque Ipiranga Resende
Rua H, — Eucaliptal, Resende - RJ
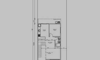
O imóvel "Sobrado na planta parque ipiranga resende" possui 3 dormitórios, 3 banheiros, 2 vagas na garagem, venda por R$600.000, 225m² de área, varanda e está localizado em Rua H, Eucaliptal, Resende.
um Sobrado na planta, com excelente valor, em terreno amplo, com alto padrão de construção e de acabamentos? Já cansou de procurar e não encontra o melhor negócio? Hoje eu te apresento o projeto do Sobrado na planta, uma excelente oportunidade para você adquirir ainda na planta! Sobrado localizado no Parque Ipiranga Resende e contem: ? 108 m²; ? 3 dormitórios; ? 2 suítes, 1 máster com closet; ? Sala de estar e jantar; ? Rebaixe em gesso; ? Piso em porcelanato; ? Sacada com linda vista; ? Garagem para 2 carros e mais? Sobrado na planta em dois pavimentos: Primeiro pavimento do imóvel composto por: Sala de Estar, Sala de Jantar, Cozinha, Quarto Suíte, e Área de serviço. Pavimento superior do Sobrado com: Dois Quartos sendo uma suíte máster, suíte com closet e varanda. Imóvel com ótima localização no Parque Ipiranga Resende, a poucos metros da Av. Augusto de Carvalho com todos os negócios locais e transporte público regular. A 5 minutos a pé Escola Parque Ipiranga, 12 minutos a pé Padaria Ipiranga, e 18 minutos a pé AlphaPark e AlphaMed. Sobrado na planta com 108 m² de área construída, Área total do Terreno 225 m². Entrega prevista para 2023! Apenas R$ 480.000! Gostou do Sobrado na planta no Parque Ipiranga Resende? Vamos conferir? Ligue ou envie mensagem para o número: (24) 99939-3464.
Casa à venda
Atualizado há mais de 1 mês
PREÇO R$ 600.000
Dezirê - Corretora de Imóveis
Ver anúnciosConversar com o anunciante
Para sua segurança:
1. Não realize pagamento adiantado.
2. Suspeite de anúncios com valores duvidosos.
Tem interesse?
Envie uma mensagem ao anunciante.












