MORADIA DE SONHO T5 EM ALTO DAS VINHAS - SESIMBRA
Rodovia Br, — Amazonia Park, Cabedelo - PB
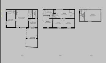
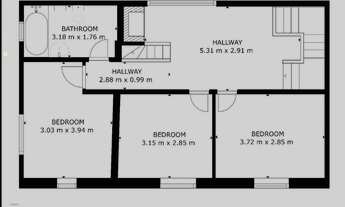
O imóvel "Moradia de sonho t5 em alto das vinhas - sesimbra" possui 5 dormitórios, 3 banheiros, 3 vagas na garagem, venda por R$2.300.000, 330m² de área, imóvel novo, imóvel mobiliado, churrasqueira, piscina, ar-condicionado, varanda, lareira e está localizado em Rodovia Br, Amazonia Park, Cabedelo.
DE ALTO PADRÃO T5 EM ALTO DAS VINHAS - SESIMBRA | PORTUGAL
Apresentamos uma moradia exclusiva T5, localizada na nobre e tranquila urbanização de Alto das Vinhas, em Sesimbra - Portugal. Um imóvel pensado para quem busca conforto, privacidade, segurança e qualidade de vida, em perfeita harmonia com a natureza.
Inserida em uma urbanização com conceito de condomínio fechado, esta propriedade destaca-se pelo ambiente extremamente silencioso e seguro, ideal tanto para residência permanente quanto para investimento.
?
DIFERENCIAIS DO IMÓVEL
? 5 dormitórios, sendo 1 suíte
? Sótão totalmente aproveitado, ideal para home office, sala de jogos ou dormitório adicional
? Piscina privativa com tratamento em sal, mais saudável e confortável
? Espaço gourmet com churrasqueira e anexo externo, perfeito para receber amigos e família
? Cozinha ampla com despensa
? Acabamentos rústicos de inspiração alentejana, que conferem charme e sofisticação
? Lareira funcional em ambos os pavimentos
? Ar-condicionado
? Reservatório de água com capacidade para 8.000 litros
? Documentação 100% regularizada, pronta para escritura
?
ESTILO DE VIDA E LOCALIZAÇÃO
A área externa proporciona momentos únicos de lazer e bem-estar, seja para desfrutar de dias ensolarados à beira da piscina ou noites acolhedoras junto à lareira.
Localizada a poucos minutos das praias de Sesimbra, com fácil acesso a Lisboa, esta moradia oferece o equilíbrio perfeito entre natureza, conforto e conveniência urbana.
?
EXCELENTE OPÇÃO PARA INVESTIMENTO
Além de ideal para moradia própria, o imóvel apresenta alto potencial para Alojamento Local, com rentabilidade semanal em alta temporada entre ? 2.700 e ? 3.000, tornando-se uma oportunidade extremamente atrativa para investidores brasileiros em Portugal.
?
? Entre em contato para mais informações ou agendar uma visita.
Esta não é apenas uma casa ? é o início de um novo estilo de vida em Portugal ou investimento no mercado imobiliário europeu.
Características da casa:
- Ar Condicionado
- Área De Serviço
- Armários Na Cozinha
- Armários No Quarto
- Churrasqueira
- Mobiliado
- Quarto De Serviço
- Varanda
Casa à venda
Atualizado há 6 dias
PREÇO R$ 2.300.000
Para sua segurança:
1. Não realize pagamento adiantado.
2. Suspeite de anúncios com valores duvidosos.
Tem interesse?
Envie uma mensagem ao anunciante.













