Maravilhosa área comercial na Zona Norte
Avenida do Forte, — Vila Ipiranga, Porto Alegre - RS
1000m² de Área
O imóvel "Maravilhosa área comercial na zona norte" possui Venda por R$3.820.000, 1000m² de área e está localizado em Avenida do Forte, Vila Ipiranga, Porto Alegre.
área comercial em zona nobre da av. do Forte, junto a comércio, bancos, farmácias e super mercado, no fluxo para o Jardim Europa e Iguatemi.
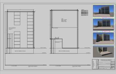
Imóvel com dimensão de 20 por 33 metros, já com estudo de 1500 metros quadrados, sendo 1000 para loja (incluindo mezanino e sobreloja) mais garagem subterrânea de 500 metros quadrados para 22 carros e estacionamento frontal para mais 9 carros, ideal para bancos, clínicas, etc. O estudo permite alterações para mais de uma loja e ainda salas comerciais.
Excelente oportunidade de negócio para investidores.
Estudamos propostas e parcelamento.
Galpão / Depósito à venda
Atualizado há mais de 1 mês
PREÇO R$ 3.820.000
LINA Imóveis
Ver anúnciosConversar com o anunciante
Para sua segurança:
1. Não realize pagamento adiantado.
2. Suspeite de anúncios com valores duvidosos.
Tem interesse?
Envie uma mensagem ao anunciante.













