LINDO PRÉDIO COMERCIAL DE DOIS PAVIMENTOS A 350MS DA ESTAÇÃO CONCEIÇÃO DE METRÔ
Avenida Engenheiro Armando de Arruda Pereira, — Jabaquara, São Paulo - SP
O imóvel "Lindo prédio comercial de dois pavimentos a 350ms da estação conceição de metrô" possui 5 vagas na garagem, aluguel por R$48.000 /mês, condomínio por R$4.799 /mês, 1100m² de área, ar-condicionado e está localizado em Avenida Engenheiro Armando de Arruda Pereira, Jabaquara, São Paulo.
para Aluguel, 1100m² por R$ 48.000/Mês. Jabaquara - São Paulo/SP
Encontrar o imóvel dos sonhos nunca foi tão fácil como na parceria entre a Arbo e a Imobiliaria Prime Brokers!
Basta preencher o formulário com nome, telefone e e-mail e enviar. Pronto! Agora o corretor da Imobiliaria Prime Brokers entrará em contato para confirmar interesse e agendar uma visita.
Se tiver alguma dúvida, é só entrar em contato com a Arbo pelo número anunciado ao lado. Lembre-se que o imóvel está sujeito à confirmação de disponibilidade e valores.
Confira mais sobre o imóvel da Imobiliaria Prime Brokers:
Traga sua empresa para um lindo prédio comercial somente a 350ms da estação do metrô Conceição, com excelente visibilidade. Em frente a sede do Itaú e próximo ao Centro Empresarial
do aço. Região permite diversos tipos de ocupação, linhas de ônibus que passam na
frente do imóvel, diversos comércios ao entorno.
Benfeitorias:
- Piso porcelanato
- Ar-Condicionado Split Teto
- Forro
- Iluminação
- Copa/refeitório
- Auditório
- Elétrica/ rede.
Potencial Construtivo 4x
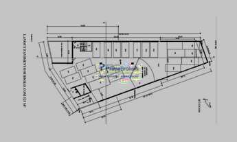
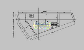
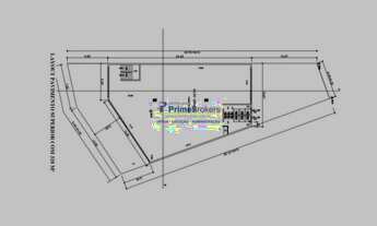
Testada: 21m
Terreno: 525 m2
Subsolo : aproximadamente 525 m²
Térreo: 400 m2
1ª Andar: 320 m2
Cobertura não Computável (descoberta) = 320 m2, sendo Possível cobrir, vista
para o Aeroporto de Congonhas.
Área Total Construída= aproximadamente 1.100 m²
Área total: 1.500 m²
Vagas: 20
Entrada Elétrica 75KVA
Laje: 500kg/m2
Pé direito: (Piso/Forro) Subsolo: 2.80m Térreo: 3.00m 1a andar: 2.75m
Habite-se em dia.
Gostou do imóvel?
Vamos agendar uma visita?
Aguardamos seu contato
Galpão / Depósito para alugar
Atualizado há mais de 1 mês
PREÇO R$ 48.000 /Mês
CONDOMÍNIO R$ 4.799 /Mês
TOTAL R$ 52.799 /Mês
Inclai Imóveis
Ver anúnciosConversar com o anunciante
Tem interesse?
Envie uma mensagem ao anunciante.














