Geminado aventureiro ; casa a venda bairro aventureiro
Rua Claudio Lopes, — Aventureiro, Joinville - SC
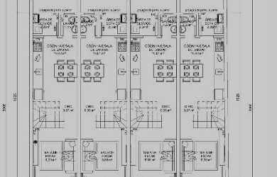
O imóvel "Geminado aventureiro ; casa a venda bairro aventureiro" possui 2 dormitórios, 1 banheiro, 2 vagas na garagem, venda por R$298.900, 63m² de área, churrasqueira, ar-condicionado e está localizado em Rua Claudio Lopes, Aventureiro, Joinville.
Excelente oportunidade de casa Geminada na planta , localizada no bairro aventureiro, um local tranquilo e muito bem localizado, próximo ao aeroporto, colégios, padarias, farmácias, lojas, restaurantes, academias .
-com 63 m² área útil
-Com 10.5 metros de espaço na frente e 8 metros de fundo - 2,85 de abertura
-2 quartos
- massa corrida interna
- Piso cerâmico de excelente qualidade,
- infraestrutura para ar condicionado
- rebaixo em gesso.
- 2 vagas de garagem
- churrasqueira carvão
- Portão eletrônico
- Unidade 4
*Aceita carro e moto na negociação (mediante a avaliação)
Entrada facilitada até a entrega das chaves.
Previsão de entrega 11/2022
Agende sua visita (47) 98442-3846- Lucas Matias
Casa à venda
Atualizado há mais de 1 mês
PREÇO R$ 298.900
Boaretto Imoveis Ltda
Ver anúnciosConversar com o anunciante
Para sua segurança:
1. Não realize pagamento adiantado.
2. Suspeite de anúncios com valores duvidosos.
Tem interesse?
Envie uma mensagem ao anunciante.









