Galpão Logístico em Sorocaba/SP - 5.600m² Próximo da Rod. Castelinho
Cajuru do Sul, Sorocaba - SP
O imóvel "Galpão logístico em sorocaba/sp - 5.600m² próximo da rod. castelinho" possui Aluguel por R$90.120 /mês, IPTU por R$3.050, 3600m² de área total, 5600m² de área privada e está localizado em Cajuru do Sul, Sorocaba.
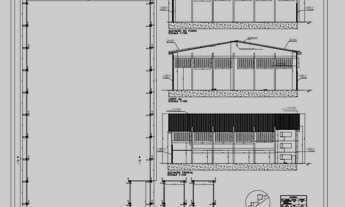
Galpão Industrial Cajuru do Sul Área Total: 5.600,00 m² Área Construída: 3.600,00 m² Área Útil Galpão 2.905 m² Pátio: 1.600 m² + 500 m² lateral Pé Direto: 10 m Área de Apoio: escritórios, vestiários e salas. Energia: C6- Trifásico: Cabo95mm com disjuntor 3P 200(A) Demanda 57 < D < 76 kVA - Carga Instalada: 25 < C < 75KW Despesas Locatário: Água, Luz, Iptu, seguros e adequações AVCB para atividade
Galpão / Depósito para alugar
Atualizado há 21 dias
PREÇO R$ 90.120 /Mês
IPTU R$ 3.050
Macon F & G Imoveis
Ver anúnciosConversar com o anunciante
Tem interesse?
Envie uma mensagem ao anunciante.








