Estrada Do Guriri - Cabo Frio/RJ - Projeto de casa duplex de alto padrão - 220,58 m² - R$1
Rua do Guriri, — Peró, Cabo Frio - RJ
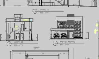
O imóvel "Estrada do guriri - cabo frio/rj - projeto de casa duplex de alto padrão - 220,58 m² - R$1" possui 3 dormitórios, 4 banheiros, 2 vagas na garagem, venda por R$1.500.000, 220m² de área, área de serviço e está localizado em Rua do Guriri, Peró, Cabo Frio.
projeto de casa duplex no condomínio Terras Alphaville!
O 1º pavimento irá contar com uma sala toda em conceito aberto, sala de jantar, escritório, cozinha, lavanderia, área de serviço e banheiro social. No 2º pavimento terá 3 maravilhosas suítes com varanda sendo uma suíte master com closet. A área externa com um belo espaço gourmet, vaga de garagem coberta para 2 carros....e tudo isso em um condomínio de alto padrão. Conheça e se apaixone pelo projeto!
Fale conosco: -
Casa em condomínio à venda
Atualizado há mais de 1 mês
PREÇO R$ 1.500.000
DALMONT IMÓVEIS
Ver anúnciosConversar com o anunciante
Tem interesse?
Envie uma mensagem ao anunciante.














