Cobertura à venda, Vila São Pedro - Santo André/SP
Rua Santa Carolina, — Vila São Pedro, Santo André - SP
O imóvel "Cobertura à venda, vila são pedro - santo andré/sp" possui 2 dormitórios, 1 banheiro, 1 vaga na garagem, venda por R$445.000, 99m² de área e está localizado em Rua Santa Carolina, Vila São Pedro, Santo André.
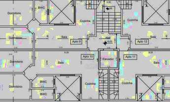
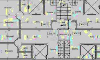
C/ELEVADOR A VENDA NA VILA SÃO PEDRO: 99m² de área útil: 02 dormitórios, sendo 01 suíte; sala para dois ambientes; cozinha; banheiro social; 01 vaga de garagem. Cobertura parcialmente coberta com banheiro e área de serviço. Previsão de entrega: Janeiro/23. A 300 metros da UFABC e 900 metros do Carrefour. Fácil acesso a Av. dos Estados e Centro de Santo André. CÓD. CO5832
Agende sua visita com um dos nossos corretores e venha conhecer!! -
Características do apartamento na cobertura:
- Área De Serviço
- Elevador
Apartamento cobertura à venda
Atualizado há mais de 1 mês
PREÇO R$ 445.000
Nacional Corretores - VD1
Ver anúnciosConversar com o anunciante
Para sua segurança:
1. Não realize pagamento adiantado.
2. Suspeite de anúncios com valores duvidosos.
Tem interesse?
Envie uma mensagem ao anunciante.














