Cobertura à venda, 104 m² por R$ 360.000,00 - Parque Novo Oratório - Santo André/SP
Rua Dalmácia, — Parque Novo Oratório, Santo André - SP
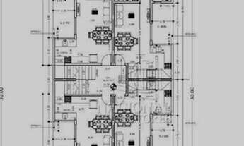
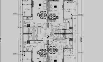
O imóvel "Cobertura à venda, 104 m² por R$ 360.000,00 - parque novo oratório - santo andré/sp" possui 2 dormitórios, 1 banheiro, 1 vaga na garagem, venda por R$360.000, 104m² de área, imóvel novo e está localizado em Rua Dalmácia, Parque Novo Oratório, Santo André.
à venda - Parque Novo Oratório, 52+52m² , 02 dormitórios, sendo 01 suíte, sala, cozinha, área de serviço, 01 vaga de garagem. Cobertura com telhado e banheiro. Previsão de entrega : Dezembro/2021. Cód CO4992.
Informe o código de anúncio e consulte-nos sobre a possibilidade de financiamento deste imóvel. ligue ou pelo whats .
Agende sua visita com um dos nossos corretores e venha conhecer!!! -
Características do apartamento na cobertura:
- Área De Serviço
Apartamento cobertura à venda
Atualizado há mais de 1 mês
PREÇO R$ 360.000
Nacional Corretores - VD1
Ver anúnciosConversar com o anunciante
Tem interesse?
Envie uma mensagem ao anunciante.














