Casa à venda Rua Conrado Ferrari, Jardim Isabel - Porto Alegre
Rua Conrado Ferrari, — Jardim Isabel, Porto Alegre - RS
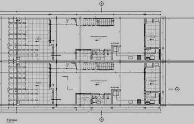
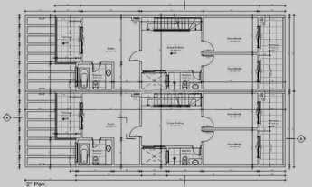
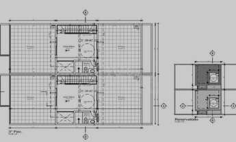
O imóvel "Casa à venda rua conrado ferrari, jardim isabel - porto alegre" possui 3 dormitórios, 5 banheiros, venda por R$1.285.000, 256m² de área, churrasqueira, lareira e está localizado em Rua Conrado Ferrari, Jardim Isabel, Porto Alegre.
casa em construção, com previsão de entrega para 2016, 3 dormitórios com sacada, sendo um suíte e espera para hidromassagem, expansão para mais dois dormitórios, amplo living com espera para lareira e elevador, terraço com espera para churrasqueira, pátio e vagas de garagem, tudo com vista definida para morro de preservação natural.Confira!
Casa à venda
Atualizado há mais de 1 mês
PREÇO R$ 1.285.000
Para sua segurança:
1. Não realize pagamento adiantado.
2. Suspeite de anúncios com valores duvidosos.
Tem interesse?
Envie uma mensagem ao anunciante.











