Casa residencial para venda, Residencial Meu Rincão, Cachoeirinha - CA6837
Estrada Dos Caetanos, — Cachoeirinha, RS
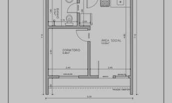
O imóvel "Casa residencial para venda, residencial meu rincão, cachoeirinha - ca6837" possui 1 dormitório, 1 banheiro, 1 vaga na garagem, venda por R$137.000, 29m² de área e está localizado em Estrada Dos Caetanos, Cachoeirinha, RS.
de casas de 1 e 2 dormitórios com pátio privativo localizado em Cachoeirinha, na estrada dos Caetanos, junto à Estrada Passo do Nazário. Sem custo de condomínio. Preço e disponibilidade do imóvel sujeitos a alteração sem aviso prévio. -
Casa à venda
Atualizado há mais de 1 mês
PREÇO R$ 137.000
David Cardoso Ferreira
Ver anúnciosConversar com o anunciante
Tem interesse?
Envie uma mensagem ao anunciante.














