Casa Condomínio Fechado, Jardins Marselha, 3 suítes, 2 vagas, Marituba PA
Marituba, Ananindeua - PA
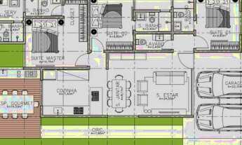
O imóvel "Casa condomínio fechado, jardins marselha, 3 suítes, 2 vagas, marituba pa" possui 3 dormitórios, 4 banheiros, 2 vagas na garagem, venda por R$600.000, 167m² de área, churrasqueira, piscina, área de serviço e está localizado em Marituba, Ananindeua.
JARDINS MARSELHA
# Localização: Br-316, Marituba - PA;
# 167m² de área construída;
# Sala de estar com pé direito duplo com cozinha integrada;
# Área gourmet com churrasqueira e piscina;
# Sala de jantar, Lavabo, banheiro de serviço e lavanderia privativa;
# 3 suítes sendo 1 máster com closet;
# 2 vagas de garagem;
# Entrega 5 meses.
Diferenciais: Designer moderno, fachada imponente, acabamento de ferragens, louças, bancadas e soleiras revestimentos de primeira qualidade, piso 100% porcelanato, projeto de iluminação, pontos para split.
Oferece área de lazer com piscina adulto e infantil quadra poliesportiva, quadra de tênis , playground churrasqueiras, espaço gourmet, guarita 24h com ronda ostensiva.
# Aceita financiamento, pode usar FGTS.
Contato: Diego Nascimento
Creci: 9770
Casa em condomínio à venda
Atualizado há mais de 1 mês
PREÇO R$ 600.000
Para sua segurança:
1. Não realize pagamento adiantado.
2. Suspeite de anúncios com valores duvidosos.
Tem interesse?
Envie uma mensagem ao anunciante.











