Casa com 300m² de área de terreno, 2 dormitórios sendo 1 suíte no Centenário em Sapiranga
Centenario, Sapiranga - RS
O imóvel "Casa com 300m² de área de terreno, 2 dormitórios sendo 1 suíte no centenário em sapiranga" possui 2 dormitórios, 1 suíte, 2 banheiros, venda por R$860.000, 300m² de área, piscina, ar-condicionado e está localizado em Centenario, Sapiranga.
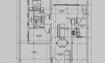
Apresentamos a Casa Tulipa: um projeto contemporâneo que une conforto, estética e funcionalidade em uma localização estratégica no bairro Centenário. Com 122,34m² de área construída em um terreno de 300m², essa casa conta com 2 dormitórios, sendo uma suíte, sala e cozinha integradas, área gourmet fechada e garagem para dois carros. A estrutura foi pensada nos aberturas em PVC, porcelanato, piso flutuante, rebaixo em gesso, espera para água quente e ar-condicionado split, além de iluminação bem distribuída, telhado em aluzinco e uma linda jardinagem que valoriza ainda mais os espaços. Para os momentos de lazer, uma piscina completa o projeto. Previsão de entrega em outubro de 2025. Valor de R 860.000,00. Um lar feito para viver com qualidade e estilo. Entre em contato e saiba mais | 5198052 4418 Andreis Assessoria Imobiliária | CRECI nº 26579J Instagram: https://www.instagram.com/andreisassessoria/
Casa à venda
Atualizado há mais de 1 mês
PREÇO R$ 860.000
Tem interesse?
Envie uma mensagem ao anunciante.













