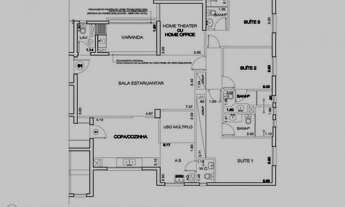
Apto de 135m² com 4 Dormitórios, sendo 3 Suítes, (terraço gourmet) 3 vagas
Rua David Campista, — Vila Léa, Santo André - SP
O imóvel "Apto de 135m² com 4 dormitórios, sendo 3 suítes, (terraço gourmet) 3 vagas" possui 4 dormitórios, 4 banheiros, 3 vagas na garagem, venda por R$955.000, condomínio por R$1.397, 135m² de área, imóvel mobiliado, piscina, ar-condicionado, varanda e está localizado em Rua David Campista, Vila Léa, Santo André.
David Campista, 132
Santo André - SP, 09090-430
Ao lado do bairro jardim!
135m²;
04 Dormitórios; sendo
03 Suítes;
03 vagas de garagem;
VALOR: R$ 955.000,00
Condomínio: R$ 1.397,00
IPTU R$ 113,75 - mensal
Sala de estar e jantar, lavado, banheiro de empregada e varanda gourmet. As janelas possuem automação e a fechadura de ambas as portas de entrada são digitais com senha.
Todos os cômodos foram feitos com moveis planejados e o piso, exceto da cozinha, é laminado. Os cômodos possuem muitos armários com algumas portas de espelho e painéis de TV em todos eles. Os banheiros possuem pia, gabinetes e box de vidro. O banheiro da suíte master possui banheira.
O apartamento possui janelas amplas com iluminação solar o dia todo, diminuindo o uso de luzes.
O condomínio possui gerador de energia e elevador panorâmico.
Toda a tubulação pronta para instalação de ar condicionado nos quartos e na sala.
Portaria 24 hs presencial.
Salão de festa, brinquedoteca, salão de jogos, playground e piscina com raia aquecida.
Características do apartamento:
- Mobiliado
- Piscina
- Varanda
- Ar Condicionado
- Elevador
- Permitido Animais
- Portaria
- Piscina
- Salão De Festas
- Condomínio Fechado
Apartamento à venda
Atualizado há mais de 1 mês
PREÇO R$ 955.000
CONDOMÍNIO R$ 1.397
Trindade Imóveis
Ver anúnciosConversar com o anunciante
Tem interesse?
Envie uma mensagem ao anunciante.














