Apartamento com 2 dormitórios à venda, 59 m² por R$ 315.000,00 - Vila Scarpelli - Santo An
Rua Ana Jarvis, — Jardim Paraíso, Santo André - SP
O imóvel "Apartamento com 2 dormitórios à venda, 59 m² por R$ 315.000,00 - vila scarpelli - santo an" possui 2 dormitórios, 1 banheiro, 1 vaga na garagem, venda por R$315.000, 60m² de área e está localizado em Rua Ana Jarvis, Jardim Paraíso, Santo André.
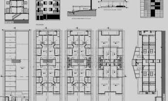
APARTAMENTO SEM CONDOMÍNIO À VENDA NA VILA SCARPELLI, em obras, com área útil total de 59,52 m², sendo sala/cozinha, área de serviço, banheiro social, 2 dormitórios, sendo um suíte com sacada e uma vaga de garagem. Possibilidade de comprar uma segunda vaga. A 250m da Parada “Estela“ do trólebus. Previsão de entrega: Dez/2021. CÓD. AP11617
... informe o código do anúncio e consulte-nos sobre a possibilidade de financiamento deste imóvel. ligue ou pelo whats -7977.
agende sua visita com um dos nossos corretores e venha conhecer!!! -
Características do apartamento:
- Área De Serviço
Apartamento à venda
Atualizado há mais de 1 mês
PREÇO R$ 315.000
Nacional Corretores - VD1
Ver anúnciosConversar com o anunciante
Para sua segurança:
1. Não realize pagamento adiantado.
2. Suspeite de anúncios com valores duvidosos.
Tem interesse?
Envie uma mensagem ao anunciante.














