5 banheiro, 795M² de Área Construída, 795M² de Área Total
Bairro Jardins, São Paulo - SP
O imóvel "5 banheiro, 795m² de área construída, 795m² de área total" possui 5 banheiros, aluguel por R$25.000 /mês, IPTU por R$13.700, 795m² de área total, 795m² de área privada e está localizado em Bairro Jardins, São Paulo.
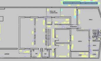
Casa para locação, Jardim Paulista, São Paulo Imóvel bem localizado próximo à Av. Brigadeiro Faria Lima, Nove de Julho e Parque Ibirapuera. Terreno com 795 m² e área construída de 493 m², localizado em uma ZCOR-2. Ao total são aproximadamente 14 salas, com vários banheiros, cozinha cópia, e amplo pátio de terreno livre. Imóvel com possibilidade de cobrança de Luvas.
Características da casa:
Elevador: 0
Elevador De Serviço: 0
Casa para alugar
Atualizado há mais de 1 mês
PREÇO R$ 25.000 /Mês
IPTU R$ 13.700
Clezia Prado Imóveis Ltda
Ver anúnciosConversar com o anunciante
Tem interesse?
Envie uma mensagem ao anunciante.














